Cofradía
$27.500 / m2
6.969 m2
Kilometro 3 via Funza – Cota, Cundinamarca, Funza
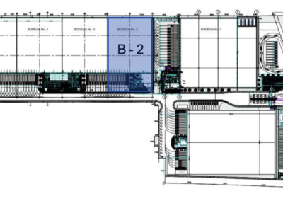
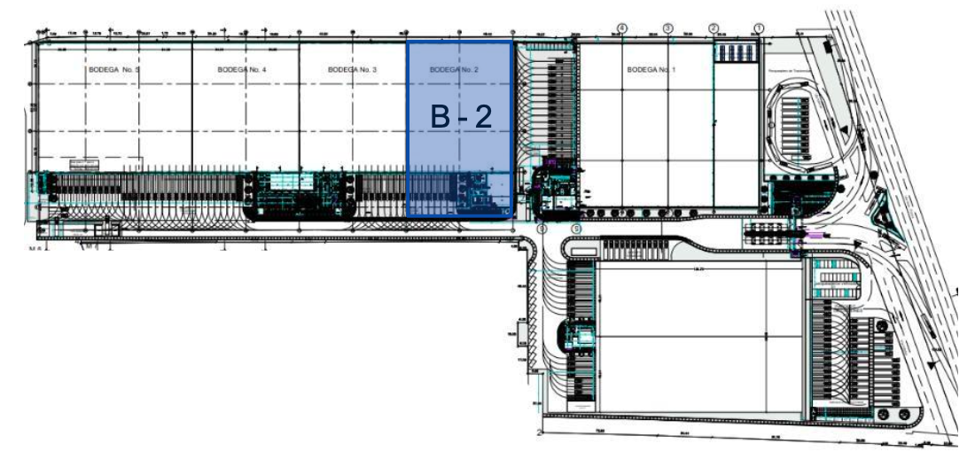
El parque cuenta con un área total construida de 61.841,66 m2 donde se encuentran construidas 8 bodegas.
Su uso principal, aprobado por las leyes vigentes municipales y por el reglamento de propiedad Horizontal, es para áreas de bodegaje, almacenamiento y oficinas para producción de bienes y servicios; así como para el almacenamiento, depósito de materia prima y producto terminado.
Ubicación:
Se encuentra ubicado en el Km 3 Vía Funza-Siberia.
• Vía Funza-Siberia, Vía Cota –Mosquera, Av.Calle 13, AvenidaCalle 80 (Autopista Medellín)
Kilometro 3 via Funza – Cota, Cundinamarca, Funza
Características
- El acceso al sector se realiza a través de vías principales de la malla vial del municipio como lo es la autopista Funza-Cota sobre la cual tiene su frente y acceso principal. Las vías en el sector se encuentran en buen estado de conservación.
- Los pisos son de placas de concreto reforzado a la vista en áreas de bodega y zonas duras y de circulación. El área de oficinas principal en tableta de grano de mármol o cerámica para tráfico pesado.
- Los techos son de teja lámina standing seam tipo sanduche.
- La bodega cuenta con los siguientes componentes: 7 bodegas cada una con su planta eléctrica, contenedores de basura, zona de oficinas de 3 pisos y sus zonas de parqueadero, 2 subestaciones eléctricas con capacidad de 500 KVA, planta eléctrica para zonas comunes, cuarto de distribución o tableros eléctricos, cuarto RCI (Red Contra Incendios), tanque de aguas negras, reservorio de agua, planta de tratamiento de aguas y cancha de futbol.
- Año de construcción: 2007.
Contáctanos
Teléfono
(+57) 3114935020
Correo
comercial@areasrenta.com
Propiedades
Cofradía
-
Cota
Industrial Bodega B-2 en Cofradia
Áreas:
6.969 m2
Canon x m2:
$27.500 / m2
Valor de renta:
$191.654.925 / mes
Tipo de inmueble:
Bodegas













