Inmueble en Arriendo
Edificio XO 91
Arrendatario:
Local S101 en XO91
$122.892.000 / mes
Inmueble:
Local S101 en XO91
Tipo de Inmueble:
Locales
Área:
1.254 m2
Ubicación:
Edificio XO 91
Valor por m2:
$98.000 / m2
Ciudad:
Bogotá
Dirección:
K 15 - Cl 91, Chapinero, Bogotá, Colombia
Canón mensual:
$122.892.000 / mes
Piso:
-1
Description
Local S101 en XO91
4.70 metros.
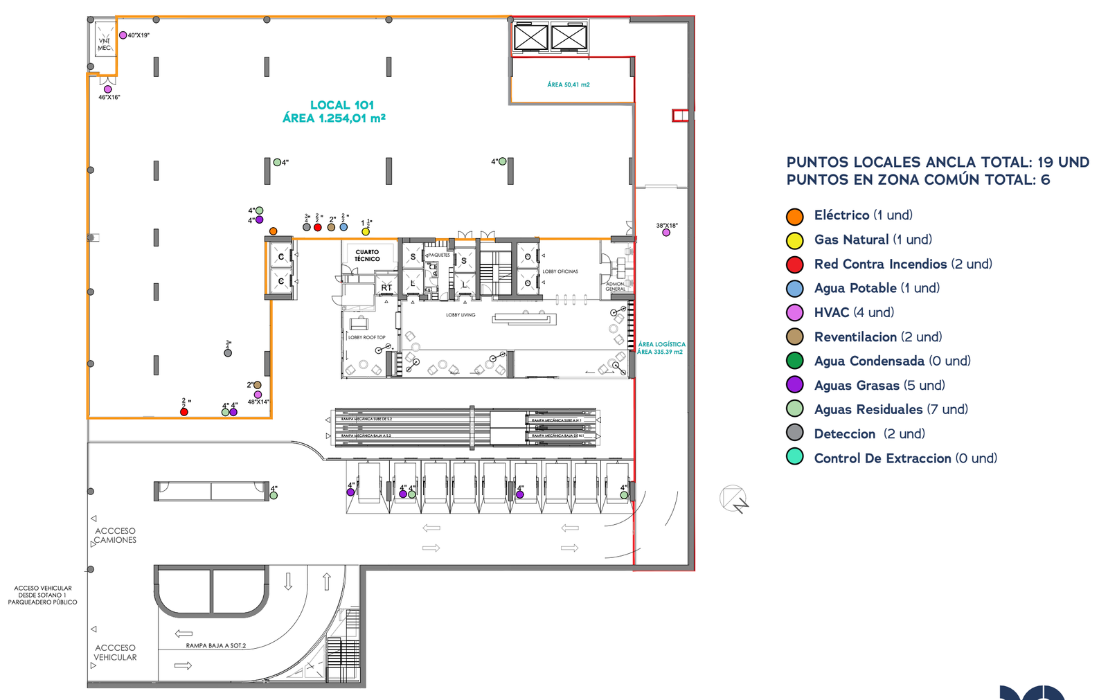
1.254,01 metros cuadrados (m²).
ESTRUCTURA
El piso cuenta con placa estructural, viguetas en concreto
a la vista, sin afinado de piso, ni muros divisorios.
Carga total de 1.302 T/M²
PUNTOS CERO DISPONIBLES
1 Puntos Electricos
2 Puntos De Reventilacion 3″
1 Puntos De Gas Natural 1 1/2″
5 Puntos De Aguas Grasas 4″
2 Puntos Red Contra Incendios 2″
7 Puntos Aguas Residuales 2″
1 Puntos Agua Potable 1″
2 Puntos De Deteccion 3/4″
4 Puntos HVAC 34″X14″
Llamar
(+57) 3114935020
Correo
comercial@areasrenta.com
Otras áreas disponibles
Centro Comercial Avenida
-
Bogotá
Para arrendar
Áreas:
34-40 m2
Canon x m2:
$120.000 / m2
Valor de renta:
$4.8 Millones / mes
Tipo de inmueble:
Locales
Dirección:
Cl 8 # 6-13, Fusagasugá, La Serena
Inmuebles Disponibles:
3
ZF Towers
-
Bogotá
Para arrendar
Áreas:
130 a 2700 m2
Canon x m2:
$35.000 / m2
Valor de renta:
$4 - $117 Millones / mes
Tipo de inmueble:
Oficinas y Locales
Dirección:
Cra. 106 #15A - 25 Zona Franca, Bogotá
Inmuebles Disponibles:
6
Vou
-
Bogotá
Para arrendar
Áreas:
137.08 m2
Canon x m2:
$120.000 / m2
Valor de renta:
$16,5 Millones / mes
Tipo de inmueble:
Locales
Dirección:
Cr 9 #106-35 Bogotá
Inmuebles Disponibles:
1



